Titan, sector 3 Bucuresti
Garsoniera Tip 1 -
VANDUT
49.680
EURO
39 MP
Suprafata utila
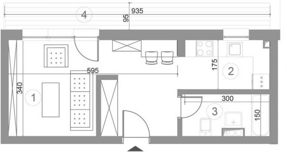
- SUPRAFATA UTILA: 30.00 MP
- SUPRAFATA CONSTRUITA: 36.60 MP
- SUPRAFATA TERASA: 8.90 MP
- NIVEL: 3R
- ORIENTARE: NORD
- 1. living: 20.10 mp
- 2. bucatarie: 5.20 mp
- 3. baie: 4.70 mp
- 4. terasa: 8.90 mp
Bugete finisaje si dotari
- Parchet + accesorii: 50 lei/mp
- Gresie si faianta: 50 lei/mp
- Usi interior (montaj inclus): 600 lei/buc
- WC + bazin: 500 lei
- Cada: 500 lei
- Baterie: 150 lei/buc