Titan, sector 3 Bucuresti
Apartament 3 camere Tip 3
VANDUT
94,905
EURO
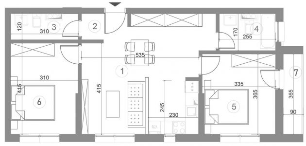
70.3 MP
Suprafata utila
- SUPRAFATA UTILA: 70.3 MP
- SUPRAFATA CONSTRUITA: 75.40 MP
- SUPRAFATA BALCON: 3.30 MP
- NIVEL: 1, 2
- ORIENTARE: SUD-EST
- 1. living + bucatarie: 22.40 mp
- 2. hol: 7.70 mp
- 3. grup sanitar: 3.80 mp
- 4. baie: 4.40 mp
- 5. dormitor: 12.10 mp
- 6. dormitor: 12.90 mp
- 7. balcon: 3.30 mp
Bugete finisaje si dotari
- Parchet + accesorii: 50 lei/mp
- Gresie si faianta: 50 lei/mp
- Usi interior (montaj inclus): 600 lei/buc
- WC + bazin: 500 lei
- Cada: 500 lei
- Baterie: 150 lei/buc